Behind the Vision

Over the past few years, the team at Glengarry has been devoted to maintaining and enhancing the campus to provide an exceptional experience for Scots students. In the wake of the devastating 2019/2020 bushfires, our focus shifted towards repairing destroyed infrastructure. Thanks to the incredible generosity of our donors, we have restored the Dining Hall, drinking water treatment system, damaged dormitories and access road, while also constructing a new parking lot.

We are now developing a new master plan for the campus in collaboration with Baxter & Jacobson Architects. This vision includes new dormitories, staff accommodation, kitchen and dining areas, flexible learning spaces, a maker’s shed and an observatory.

Progress Update

Our immediate priority is the construction of three new dormitories, providing modern, high-quality accommodation for students and staff, along with additional classrooms to enhance learning facilities. This transformational project requires $21 million in funding. To date, $6 million has been allocated from the College’s capital expenditure budget, with a further $925,000 generously contributed by donors.

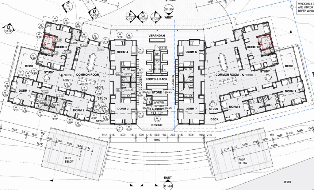
The development application designs for the Glengarry dormitories have been lodged with Shoalhaven Council and we are optimistic about receiving a positive outcome in late 2025. You can view these designs, along with our dormitory plans for Bannockburn, by clicking this link.

Leave Your Legacy

If you would like to be part of this exciting journey – helping to bring this transformative project to life for future generations of Scots students – you can make a tax-deductible gift to The Scots College Foundation Building Fund.

Together, we can create an environment that inspires excellence and empowers our students to reach their full potential.

The Scots College is a proud member of the following associations.

The Presbyterian Church (New South Wales) Property Trust T/A The Scots College, Sydney Australia
| ABN: 86 438 712 994 | CRICOS Provider Code: 02287G

William Elder

1927-2010

Mr Alan Elder was born in Scotland and migrated to Australia with his parents at a young age. He attended The Scots College for all his schooling, graduating in 1944. He played 1st XI Cricket and was a member of the College Cadet Unit. After leaving school Mr Elder studied accountancy and retained a life-long love of the College, especially the Pipes and Drums. Mr Elder never married, however the significant bequest he left will allow his Scots family to remember him through the Lang Walker Business Centre.